Vila Bela / Vila Blanca

Description du projet

VILA QUANTICA vous propose deux maisons d’architecte au design élégant. Conçues sur deux niveaux (rez-de-chaussée et sous-sol), elles offrent confort de vie, espace et luminosité.

Configuration :

Équipement :

Vidéo

Localisation

Dans un beau cadre naturel, à proximité de Pombal et de Leiria...

Le village de Barros da Paz, sur la commune d’Almagreira, est à seulement quelques minutes de Pombal et à 20 minutes des belles plages de la côte Atlantique (Nazaré, Pedrogão).

Deuxième ville de la région et capitale du district, Pombal est idéalement située, à mi-distance de Leiria et de Coimbra (30 minutes). Elle est aussi entourée des centres culturels de Fatima, Batalha et Tomar (30 minutes).  

Enfin, l’accès à Lisbonne et à Porto est direct par le réseau ferroviaire (1h15) ou autoroutier (1h30).

Plans

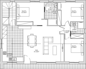
La Vila BELA et la Vila BLANCA présentent une même organisation de l’espace sur deux niveaux.

Au rez-de chaussée, le double séjour avec cuisine américaine s’ouvre sur la terrasse et la piscine au sud. Les trois chambres spacieuses possèdent chacune un dressing. Enfin, les deux salles-de-douches avec WC offrent un confort appréciable aux résidents.

Le sous-sol, semi-enterré, est pourvu de plusieurs fenêtres qui  apportent de la luminosité. Il se compose d’une grande buanderie et d’un double garage.

Côté jardin, une piscine individuelle entourée d’une grande terrasse vous permet de profiter des beaux jours.

Plans NBjpg
Plan couleur
PLAN
PROJECTION 2D
Surfaces (habitables)
Double séjour
34 m2
Cuisine
18 m2
Chambre 1
16 m2
Chambre 2
14 m2
Chambre 3
13 m2
Salle-de-douches 1
6,5 m2
Salle-de-douches 2
3,5 m2
Halls (couloir et escalier)
8 m2
TOTAL
113 m2
Surfaces (sous-sol)
Garage
90 m2
Abris voiture
12,5 m2
Cellier
6,5 m2
TOTAL
109 m2
Surfaces annexes
Terrasse (Vila Bela)
93 m2
Terrasse (Vila Blanca)
95 m2
Surfaces brutes totales
TOTAL (Vila Bela / Vila Blanca)
137 m2
TOTAL (sous-sol Vila Bela / Vila Blanca)
132 m2
TOTAL (annexes Vila Bela / Vila Blanca)
93 m2 / 95 m2
TOTAL (maison + sous-sol + annexes Vila Bela / Vila Blanca)
362 m2 / 364 m2

Aménagements extérieurs

Les deux villas se caractérisent par une architecture contemporaine, sobre et élégante.

Les aménagements extérieurs  permettent de profiter d’un climat particulièrement doux tout au long de l’année :

  • Piscine individuelle.
  • Terrasses avec bains de soleil.
  • Barbecue extérieur intégré.
  • Borne pour voiture électrique (en option).

Aménagements intérieurs

Un soin particulier est apporté aux aménagements intérieurs :

  • Cuisine américaine entièrement équipée (réfrigérateur / congélateur, four, lave-vaisselle, plaques de cuisson à induction et hotte aspirante).
  • Chambres avec dressing individuel.
  • Salles d’eau avec faïence toute hauteur (120 x 60 cm), douche à l’italienne et WC suspendu
  • Carrelage grand format type marbre (60 x 60 cm) ou parquet (120 x 20 cm).
  • Baies vitrées double vitrage (4/20/4) en aluminium anthracite.
  • Volets roulants télécommandés en aluminium anthracite.
  • Portes intérieures en bois (hêtre).
  • VMC double flux et climatisation réversible.

Environnement

Accès handicapé

Les aménagements intérieurs et extérieurs respectent les normes PMR (Personnes à Mobilité Réduite).

Les équipements sanitaires et électroménagers sont particulièrement faciles d’accès et sécurisés. Les cheminements extérieurs, les terrasses, la piscine et le garage en sous-sol sont adaptés aux personnes en situation de handicap.

Haute performance énergétique

La Vila BELA et la Vila BLANCA présentent une forme compacte et épurée leur permettant d’être à la fois confortables et performantes au niveau énergétique.

Leurs grandes ouvertures, donnant sur les terrasses, sont orientées plein sud afin de privilégier la chaleur et la lumière naturelles. Au contraire, des casquettes prolongent le toit afin de réduire l’impact des fortes chaleurs d’été. Une attention particulière est aussi apportée à l’isolation thermique : laine minérale naturelle pour les murs, polystyrène renforcé pour le sol et la toiture. Enfin, grâce à leurs panneaux solaires orientables, situés sur le toit, elles sont aussi pleinement autonome en production d’eau chaude sanitaire.

Tous ces points leur permettent de bénéficier du statut d’habitation à haute performance énergétique (type A+).